Trinity Development Project Update

Since May, members of the public have been telling us what they want to see happening with Trinity

Working alongside independent consultants 2Morrow 2Day and gcp Chartered Architects, TCA have engaged people through hosting focus groups, outreach work, a paper and online survey, events, road-shows, social media, website and blog so that everyone can have their say in how they would like to see the Trinity Centre developed.

So far over 500 individuals have completed an online or paper survey and over 100 regional and local voluntary organisations have also been engaged representing over 10,000 members in total.

Key groups engaged so far include Bristol City Council officers and councilors, community and voluntary sector organisations, arts and media groups and local residents.

Feedback so far includes that the Centre is "much loved" and "a gateway to the community", with one young person commenting "Trinity saved my life!"

Comments highlighting areas for improvement include "I used to go there but I don’t know what they do now", "The entrance is so confusing I nearly walked out" and "they need to smarten up that car-park".

Other general comments have included vital feedback about the services that are delivered currently including suggestions for future projects and improving the building. Case studies have been developed and will be used in final report.

Initial Findings

  • 70% of survey respondents are regular users whilst 30% haven’t ever visited Trinity in the last year or at all.
  • An early trend in the survey is the requested need for ‘Event space’ that enables performers, community meetings, theatre space, adult education/training and weddings reception.
  • As regards the building strong requests are being made for a fully accessible, heated, building.There is a 13% BME representation (city average) in terms of completing survey.

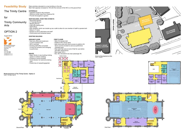
This initial feedback has been used to create three design options for the Centre - these will be used for the upcoming Stage 2 Consultation, which will take place between 4pm-7pm on the following dates/venues:

Venue


Stage 2

Stage 3

Arts Westside Café

 

6th August

17th September

Barton Hill Settlement

 

7th August

18th September

Easton Community Centre

 

8th August

19th September

The Trinity Centre

 

9th August

20th September

The three initial design options (see links below) will be used to provoke discussion and develop a final design that will be used as part of future Centre developments as well as to embark on the first stage of Development works if TCA are successful in their application to Big Lottery Reaching Communities Buildings Fund.